Svaki uspešan enterijer počinje dobrim planiranjem. Materijali, osvetljenje i raspored elemenata pažljivo se biraju kako bi prostor bio skladan, funkcionalan i prijatan za boravak. Ipak, neretko se dešava da jedan, naizgled sitan, deo projekta ostane zanemaren – planiranje razvoda struje.
Iako se na prvi pogled čini kao sporedna stavka, upravo od razvoda struje zavisi koliko će prostor biti praktičan, bezbedan i prilagođen svakodnevnom korišćenju. Kada se o njemu razmišlja na vreme, izbegavaju se naknadne izmene, improvizacije na licu mesta i dodatni troškovi.
Naš posao je da taj deo projekta učinimo jednostavnim i efikasnim. Rado sarađujemo sa arhitektima, dizajnerima i projekt menadžerima već od najranijih faza razvoja projekta. U neposrednoj saradnji sa vama analiziramo planove, predlažemo optimalan raspored utičnica i kompletan razvod napajanja, kako bi svaki detalj bio u skladu sa tehničkim zahtevima, estetikom i planiranim budžetom.
Kako izgleda saradnja sa nama
Naš proces rada osmišljen je tako da se lako uklopi u vaš način projektovanja i uštedi vam sate koordinacije.
Sve se odvija u tri jednostavna koraka
- Upit – Ovo je trenutak kada vi sa nama delite detalje o projektu, tlocrt ili čak samo grubu skicu.
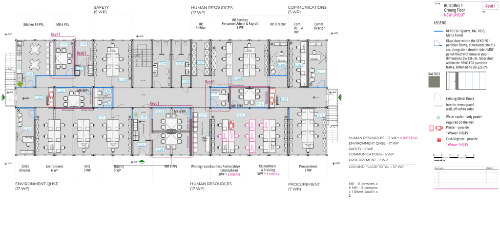
- Analiza rasporeda – Pregledamo planove, razmatramo najbolje pozicije za utičnice i odgovarajuće konfiguracije utičnica u skladu sa dizajnom i definisanim zahtevima.
- Ponuda i isporuka – Dobijate dve kompletne ponude, ekonomičnu i premium, obe prilagođene prostoru, stilu i budžetu. Sve stiže upakovano, obeleženo i spremno za montažu.
 
											Svako rešenje prilagođavamo konkretnom projektu. Vodimo računa o tehničkim i estetskim zahtevima, kao i o budžetu, kako bi sve bilo jednostavno, jasno i funkcionalno. Na taj način štedite dragoceno vreme koje bi inače odlazilo na usklađivanje između dizajnera, električara i izvođača radova.
Rezultat je uredan, moderan i potpuno funkcionalan prostor koji izgleda tačno onako kako je zamišljen.
Nakon analize planova pripremamo najmanje dve ponude. Prva se fokusira na racionalno rešenje koje pokriva sve potrebe projekta, dok druga donosi napredniju, premium varijantu sa dodatnim mogućnostima. U obe varijante nalaze se svi detalji – konfiguracija utičnica, njihov položaj, dužine kablova, cene i tehničke specifikacije.
Pre isporuke, svaka kutija pažljivo se pakuje i obeležava prema planu projekta. Legenda sa oznakama omogućava brzu i preciznu montažu, smanjuje mogućnost greške i olakšava rad izvođačima.
Šta vi dobijate
Kada planiranje razvoda struje prepustite nama, možete da se posvetite onome što je zaista presudno za kvalitetan enterijer – skladnom spoju dizajna, funkcionalnosti, komfora i trajnosti. Naš zadatak je da tehničke detalje rešimo umesto vas i obezbedimo da sve funkcioniše besprekorno, bez nepotrebnih komplikacija.
Tako planiranje razvoda struje postaje deo dizajna, a ne prepreka u njegovoj realizaciji. Sve je pažljivo usklađeno sa budžetom, rokovima i vašom vizijom projekta.
Prednosti saradnje sa nama
- Besplatna projektna podrška – Naša pomoć počinje od prve skice i traje sve do instalacije, bez dodatnih troškova.
- Prilagođena rešenja – Svaki projekat je jedinstven, zato prilagođavamo konfiguracije utičnica i završne obrade vašem konceptu i budžetu.
- Dve kompletne ponude – Ekonomična i premium, potpuno usklađene sa vašom idejom i zahtevima
- Jednostavna saradnja – Radimo direktno sa vašim timom kako bi plan razvoda struje bio savršeno uklopljen u celokupan dizajn.
- Sve je spremno za montažu – Sve stiže obeleženo i pripremljeno za brzu instalaciju, što značajno štedi vreme na terenu.
- Pouzdana isporuka – Uvek na vreme, u okviru budžeta i u skladu sa međunarodnim standardima.
Neki od naših realizovanih projekata










Imate projekat?
Kontaktirajte nas da zajedno razmotrimo vaš naredni projekat. Osmislićemo rešenje koje podjednako dobro funkcioniše na papiru i u prostoru – precizno, estetski i bez iznenađenja na terenu.
More to read

Savršen red u kuhinji počinje jednom skrivenom utičnicom
Postoje neke stvari koje se podrazumevaju i na koje ne obraćamo pažnju dok nam ne zatrebaju. Jedna od njih je električna energija.

Digitel je spreman za SICAM 2025
Digitel će i ove godine izlagati na SICAM 2025 u Italiji od 14. do 17. oktobra. Očekujemo vas!

5 trendova u kuhinji koji su uvek u modi
Kuhinja je srce svakog doma. Iako se trendovi u dizajnu menjaju iz godine u godinu, postoji nekoliko elemenata koji se uvek vraćaju, bez obzira na to šta je trenutno popularno. Ako želiš da tvoja kuhinja bude prostor koji nikada ne izlazi iz mode, evo pet trendova na koje se uvek možeš osloniti.


